新築 三条市興野3丁目
三条市エリアでの住まいなら、住み心地も快適な「新築 三条市興野3丁目」はいかがでしょうか◎薬や日用品を買うのに便利なクスリのアオキ 興野店まで、183mです◎東三条駅まで徒歩7分◎お住まいが心地よいものであれば、心にゆとりが生まれます◎大切なお住まい探し、当社に任せていただけませんか(^_^)
現地案内会 毎週土日
- ※事前に必ずお問い合わせください
- 随時案内会実施中!1組ずつご案内するので必ずご予約下さい。
所要時間1時間程で、物件(間取り・設備・性能など)しっかりご案内させていただきます。
もちろん近隣の学校や、暮らしに必要な情報・住宅ローンについて詳しく知りたい♪など
ご要望にお応えします。
見学当日は、店舗へご来店いただくか、直接お車でお越しいただいても良いです。
電車でお越しの際は、無料送迎いたします。
◎すぐ見たい!相談したい!
025-201-8562へすぐお電話ください☆彡
◎日時を指定したい!
ご見学の際は「見学予約する(無料)」の赤いボタンをクリック!!
2日後から予約可能ですので、計画的に、ゆとりをもってご案内頂けます
不動産取引やエリアを熟知したスタッフがお待ちしております('ω')ノ
-
ローンシミュレーションこの物件を購入した場合の、月々の支払い価格の一例です。借り入れを保証するものではございません。
- 返済期間
-
- 金利
-
- ボーナス時の増額(1回分)
-
- 借入金額:
-
- 頭金:
-

- 毎月の返済額:
(※元利均等方式 金利5.00%まで ※返済年数5~50年まで入力できます)
(※ボーナスは年2回で計算しています。1000万円まで入力できます)
(※物件購入時、その他諸費用が発生する場合がございます)
情報の見方担当者のコメント 新潟ケンオー不動産株式会社

- 2駅利用できる場所にあるので利便性が高いです◎物入やWIC、ランドリールームがあり使い勝手のいい間取りとなってます◎新築の物件を検討中の方はぜひ一度こちらの物件をご覧ください◎新潟ケンオー不動産までご連絡頂ければ、当社のスタッフが三条市の不動産情報を詳しくご案内させていただきます(*´ω`*)
教育施設:一ノ木戸小学校(約1095m) 第二中学校(約1095m)
交通機関:JR信越本線 東三条駅 徒歩7分
◆ご見学について◆
毎日、ご見学が可能です。
ご見学の際は、お客様のご希望時間に合わせてご案内致します!
お忙しいお客様へは間取りのご案内をメインに30分程度のご案内。
「じっくりご覧になりたい」「家づくりの悩みがある」というお客様へは1時間ほど、
ご案内やお話をさせていただきます。
◆◇ローン相談はお任せ下さい◇◆
住宅ローンアドバイザー在籍、住宅ローンの事前審査も承ります
どんな質問にも丁寧にご説明させていただきます
お客様にぴったりの住宅ローンをアドバイスいたします
◇不動産の事でお困りのことがあればお気軽にご相談ください◇
◆◆◆メール 電話 LINE にてお問合せください◆◆◆
LINEからのお問合せも可能です♪LINEID→@279fimrc
忙しくて先延ばしにしてしまいがちな、お住まい探しですが
この機会に是非一緒にスタートしましょう!
ポイント・特徴
物件概要
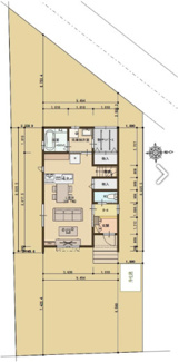
【新築一戸建】 物件番号:93568796 情報更新日:2025年12月08日 次回更新予定日:2025年12月19日所在地 新潟県三条市興野3丁目10-30 交通 間取り/詳細 3LDK/
LDK 15.0帖 1室/洋室 8.0帖 1室/洋室 6.7帖 1室/洋室 6.7帖 1室建物面積(坪数) 92.53㎡(27.99坪) 価格 2,290万円 駐車場/月額料金 有(2台)/0円 土地の敷金/保証金 -/- 借地料/借地期間 -/- 土地権利 所有権 土地面積(坪数) 202.48㎡(61.24坪) 傾斜地部分面積 - 路地状敷地 - 私道負担面積/セットバック -/無 高圧線下面積 - 地目/地勢 宅地/- 接道状況 三方(東 公道 4.8m)(南 公道 3.9m)(北西 公道 3.7m) 建ぺい率/容積率 70%/200% 用途地域 第一種住居/第一種住居 都市計画 非線引区域 種別/構造 新築一戸建/木造 階建 2階建 築年月(築年数) 2025年 4月 (新築) 総区画数/販売区画数 -/- 向き - 現況 完成済み その他の法令上の制限 22条指定区域 取引態様/引渡時期 一般媒介/即時 建築確認番号 第NK第24長00677号号 物件番号 93568796 取引条件の有効期限 2025年12月19日 設備条件 - 閑静な住宅地
- 現地案内会
- ファミリー向け
- フローリング
- 出窓
- 都市ガス
- 公営水道
- 浄化槽排水
- 24時間換気システム
- 電気有
- 照明器具付き
- 駐車2台可
- コンロ2口以上
- システムキッチン
- 対面式キッチン
- コンロ3口
- 追焚機能浴室
- 温水洗浄便座
- トイレ2ヶ所
- エアコン
- ウォークインクロゼット
- 収納豊富
- TVモニタ付インターホン
- 複層ガラス
備考 新築戸建ての物件は、室内のレイアウトも自分好みに変更可能です。3LDKの物件で、開放感のある生活を送る事が出来ます。92.53㎡の建物面積がある物件です。機能的で使いやすいシステムキッチン付きなので、お料理を楽しめます。新潟ケンオー不動産がご紹介している売買戸建ては、弥彦線燕三条周辺にもございます。025-201-8562から、いつでもご連絡下さい。 取扱会社 - 新潟ケンオー不動産株式会社
- 新潟県新潟市中央区東堀通1番町501番地1 パークサイド白山 102号
- TEL:025-201-8562
- 新潟県知事 (3) 第5250号
- 公益社団法人 全国宅地建物取引業保証協会
※地図上に表示される物件の位置は付近住所に所在することを表すものであり、実際の物件所在地とは異なる場合がございます。
物件お問い合わせ













