新築 新潟市西区五十嵐東第1 3号
越後線新潟大学前駅周辺への引っ越しをお考えなら「新築 新潟市西区五十嵐東第1 3号」♪原信 五十嵐東店まで341mです♪新潟市西区に位置する越後線新潟大学前周辺の一戸建て探しは、種類を豊富にご紹介している新潟ケンオー不動産にお任せください♪025-201-8562までご連絡をお待ちしております(*^^*)
現地案内会 毎週土日
- ※事前に必ず予約してください
- 随時見学会実施中!1組ずつご案内するので必ずご予約下さい。
所要時間1時間程で、物件(間取り・設備・性能など)しっかりご案内させていただきます。
もちろん近隣の学校や、暮らしに必要な情報・住宅ローンについて詳しく知りたい♪など
ご要望にお応えします。
見学当日は、店舗へご来店いただくか、直接お車でお越しいただいても良いです。
電車でお越しの際は、無料送迎いたします。
◎すぐ見たい!相談したい!
025-201-8562へすぐお電話ください☆彡
◎日時を指定したい!
ご見学の際は「見学予約する(無料)」の赤いボタンをクリック!!
2日後から予約可能ですので、計画的に、ゆとりをもってご案内頂けます
不動産取引やエリアを熟知したスタッフがお待ちしております('ω')ノ
ローンシミュレーションこの物件を購入した場合の、月々の支払い価格の一例です。借り入れを保証するものではございません。
- 返済期間
-
- 金利
-
- ボーナス時の増額(1回分)
-
- 借入金額:
-
- 頭金:
-

- 毎月の返済額:
(※元利均等方式 金利5.00%まで ※返済年数5~50年まで入力できます)
(※ボーナスは年2回で計算しています。1000万円まで入力できます)
(※物件購入時、その他諸費用が発生する場合がございます)
担当者のコメント 中川圭介

- 「新築 新潟市西区五十嵐東第1 3号」のここがイチオシ♪歩いて341mの場所に、原信 五十嵐東店があります♪95.58㎡の建物面積でゆったりと暮らすことができる物件です♪タタミコーナーやテレワークルームあります♪不動産の購入は、人生の中でも大きなお買い物です♪当社スタッフが不動産購入をしっかりサポートいたしますので、どうぞ安心してお任せください(^o^)
☆☆☆新築戸建購入応援キャンペーン実施中☆☆☆
当社で新築戸建住宅を購入の場合、初期費用を最大100万円おさえて購入することができます!新築戸建てで新生活を始めてはいかがでしょうか(^^♪
教育施設:五十嵐小学校(約775m)・五十嵐中学校(約1800m)
交通機関:JR越後線 新潟大学前駅 徒歩15分
◆ご見学について◆
毎日、ご見学が可能です。ご見学の際は、お客様のご希望時間に合わせてご案内致します!
お忙しいお客様へは間取りのご案内をメインに30分程度のご案内。
「じっくりご覧になりたい」「家づくりの悩みがある」というお客様へは1時間ほど、
ご案内やお話をさせていただきます。
◆◇ローン相談はお任せ下さい◇◆
住宅ローンアドバイザー在籍、住宅ローンの事前審査も承ります
どんな質問にも丁寧にご説明させていただきます
お客様にぴったりの住宅ローンをアドバイスいたします
◆当社は、当物件のご説明、ご案内の他にも下記のようなご相談も承っております◆
◇借入が2つ以上ある方 ◇自営業の方
◇勤続3ヶ月未満の方 ◇住み替えをご検討の方
◇正社員雇用ではない方 ◇他社にて借入を他社にて断られた方
◇年収が低くて不安な方 ◇諸費用がない方
◇頭金がない方 ◇ご自宅の売却を検討の方
◇不動産の事でお困りのことがあればお気軽にご相談ください◇
◆◆◆メール 電話 LINE にてお問合せください◆◆◆
LINEからのお問合せも可能です♪LINEID→@279fimrc
忙しくて先延ばしにしてしまいがちな、お住まい探しですが
この機会に是非一緒にスタートしましょう!
ポイント・特徴
物件概要
【新築一戸建】 物件番号:98973804 情報更新日:2026年02月12日 次回更新予定日:2026年02月26日| 所在地 | 新潟県新潟市西区五十嵐東1丁目3-1 | ||
|---|---|---|---|
| 交通 | |||
| 間取り/詳細 |
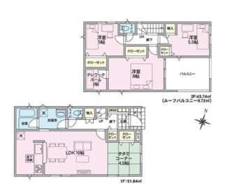
3LDK+1S(納戸)/ LDK 16.0帖/洋室 5.0帖/洋室 5.5帖/洋室 8.0帖/S テレワークルーム2帖・WIC |
建物面積(坪数) | 95.58㎡(28.91坪) |
| 価格 | 2,080万円 | ||
| 駐車場/月額料金 | 有(2台)/0円 | ||
| 土地の敷金/保証金 | -/- | 借地料/借地期間 | -/- |
| 土地権利 | 所有権 | 土地面積(坪数) | 133.66㎡(40.43坪) |
| 傾斜地部分面積 | - | 路地状敷地 | - |
| 私道負担面積/セットバック | -/無 | 高圧線下面積 | - |
| 地目/地勢 | 宅地/- | 接道状況 | 一方(東 公道 4.5m) |
| 建ぺい率/容積率 | 60%/200% | 用途地域 | 第一種住居 |
| 都市計画 | 市街化区域 | 種別/構造 | 新築一戸建/木造 |
| 階建 | 2階建 | 築年月(築年数) | 2025年 10月 (新築) |
| 総区画数/販売区画数 | 3区画/3区画 | 向き | - |
| 現況 | 完成済み | その他の法令上の制限 | 景観法/法第22条区域 |
| 取引態様/引渡時期 | 一般媒介/即時 | 建築確認番号 | 第R07SHC112726号 |
| 物件番号 | 98973804 | 取引条件の有効期限 | 2026年02月26日 |
| 設備条件 |
|
||
| 備考 | 「新築 新潟市西区五十嵐東第1 3号」のここがイチオシ♪暮らしに便利な原信 五十嵐東店(スーパー)がこちらから341mのところにあります♪2025年10月築の物件です♪新潟市西区にある不動産が気になる方は、ぜひ当社までお問い合わせください♪地域情報などと併せて、不動産の詳細情報をご紹介いたします(^_^) | ||
| 取扱会社 |
|
||
※地図上に表示される物件の位置は付近住所に所在することを表すものであり、実際の物件所在地とは異なる場合がございます。















